• Услуги
  • Готовый бизнес
  • Недвижимость
  • Аренда
    • посуточно
    • на долгий срок
    • для бизнеса
  • Франшизы
  • Бизнес идеи
  • Вакансии

 Re Премьер 2 
 Клубный дом 

Расположение клубного дома
Клубный дом расположен в непосредственной близости к центру города в двух шагах от озера Тихое, пешком до побережье Балтийского моря 15 минут.
15 минут
до Балтийского моря
7 минут

до центра города

3 минуты
до озера Тихое

Философия клубного дома
В живописной зоне города-курорта Светлогорск уютно расположился проект уникального клубного дома RE.Premier 2.0.
Чтобы в Дубае появились райские отели, их создателям пришлось насыпать искусственные острова.
Для создания клубного дома RE.Premier 2.0 этого не потребовалось: здесь все предусмотрела природа.
В клубном доме RE2 всего 3 этажа, эксплуатируемая кровля, на первом располагаются офисы, а на 2 и 3 этаже всего 6 квартир.
Срок сдачи: Сдан
Квартиры
Цена:
Эксклюзивные предложение за м²
Ваша цена ₽
Антон Иртегов
Представитель собственника

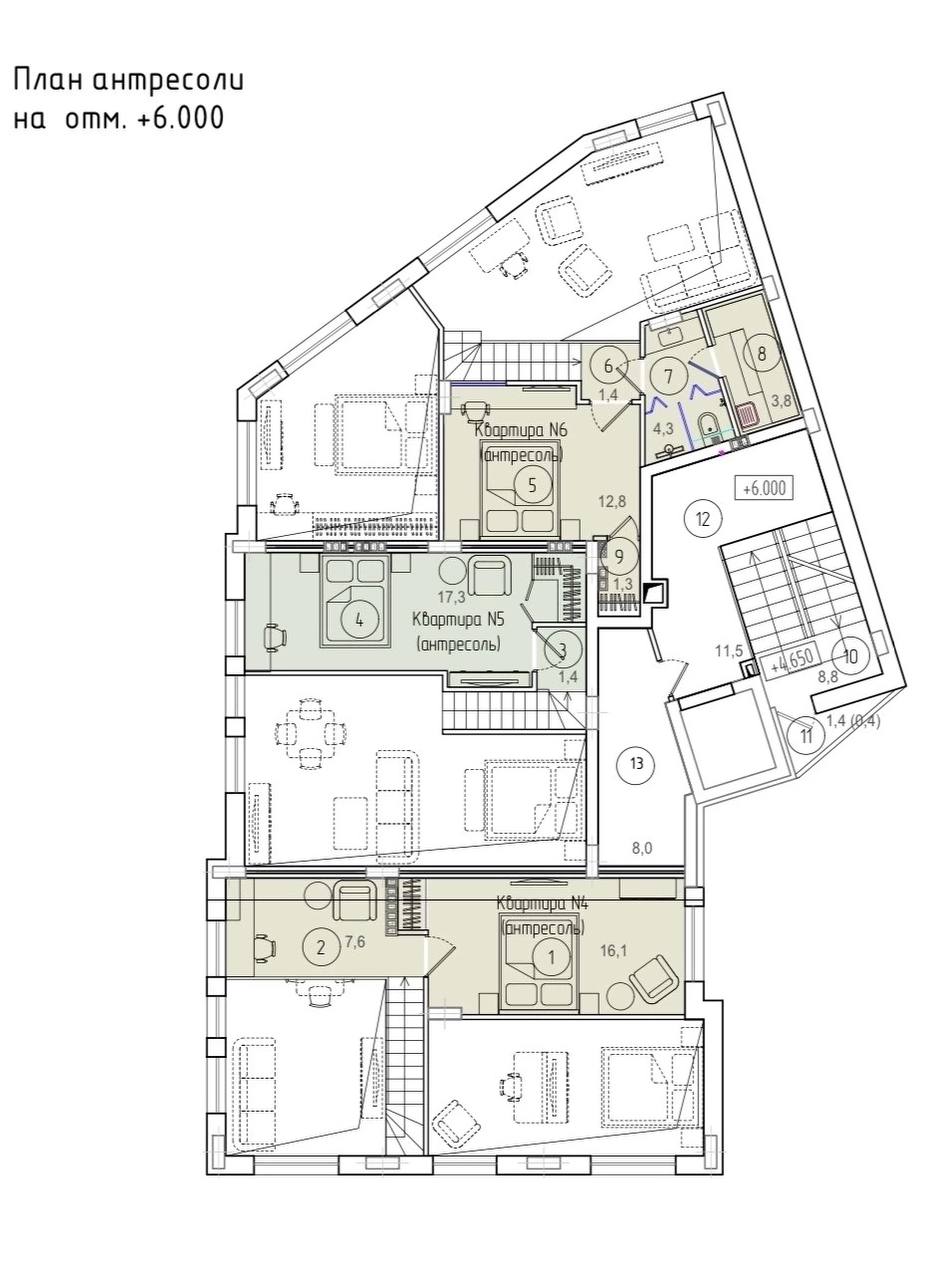
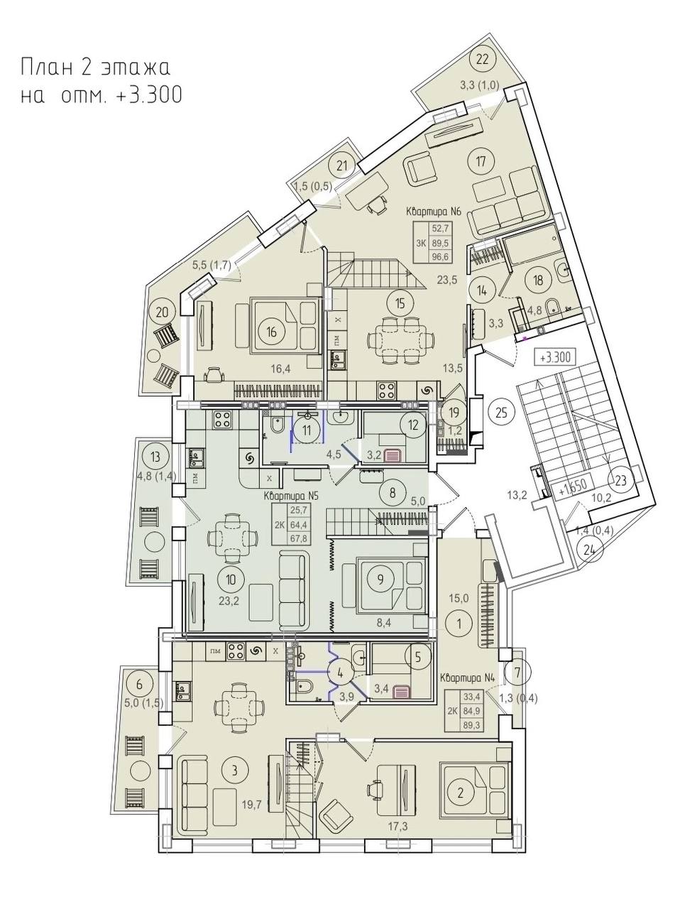
Планировки

Здесь представлена часть планировок, все планировки вы можете посмотреть вместе с брокером в нашем бюро или запросить их по

Telefon / WhatsApp / Viber / Telegram

Инфраструктура

Все необходимые объекты инфраструктуры вы найдете в шаговой доступности - супермаркет СПАР, кафе, пляжи, тихие и уютные парки, озеро Тихое, таким образом, для вас созданы все условия для размеренной и комфортной жизни в гармонии с природой и возможностью наслаждаться загородной жизнью в экологически чистом месте.
Полезные ссылки
 Красота и здоровье
 Экскурсии и туры
 Изделия из дерева 
Бизнес образование 
 Финансовые услуги
Digital Маркетинг
 Книги
 Экскурсии по новостройкам
Готовый бизнес и недвижимость
Ремонт и строительство 
Сообщество
Logo
Штаб-квартира | Светлогорск, Калининградская область, 238560, ул. Заречный проезд, 8 к. 2, кв. 2.
© 2015 - 2025 Praid+
  • Реклама на сайте
  • Разместить информацию
  • Новости
  • Заявить о себе
  • Помощь
    • Реестр МСП
  • Устав сообщества
  • О нас
  • Вакансии
  • Инвесторам
  • Благотворительность
+ 7 911 484 84 86
Телефон WhatsApp Viber Telegram
Создано в BuroPraid
Оформить заявку

Нажимая на кнопку, вы даете согласие на обработку персональных данных

Никита Ефимов

Ваш брокер +7 911 484-84-86


Оформить заявку

Нажимая на кнопку, вы даете согласие на обработку персональных данных

Связь с собствеником

Нажимая на кнопку, вы даете согласие на обработку персональных данных

Спасибо за заказ

Ваш заказ принят в обработку. 

Мы свяжемся с вами в ближайшее время.

Спасибо за заявку

Ваш заявка принят в обработку. 

Мы свяжемся с вами в ближайшее время.

Антон Иртегов

Ваш брокер +7 911 484-84-86


Оформить заявку

Нажимая на кнопку, вы даете согласие на обработку персональных данных

Благодарим за заявку
Ваша заявка принята в обработку. 
Мы свяжемся с вами в ближайшее время.
Оформить заявку

Нажимая на кнопку, вы даете согласие на обработку персональных данных

+7 911 484 84 86
Благодарим за заявку
Ваша заявка принята в обработку. 
Мы свяжемся с вами в ближайшее время.
Дата и время аукциона находятся на главной странице

Нажимая на кнопку, вы даете согласие на обработку персональных данных

Дата и время аукциона находятся на главной странице 
Оформить заявку

Нажимая на кнопку, вы даете согласие на обработку персональных данных

+7 911 484 84 86